Vermietete ETW als Kapitalanlage

Lage: 32609 Hüllhorst | Nordrhein-Westfalen
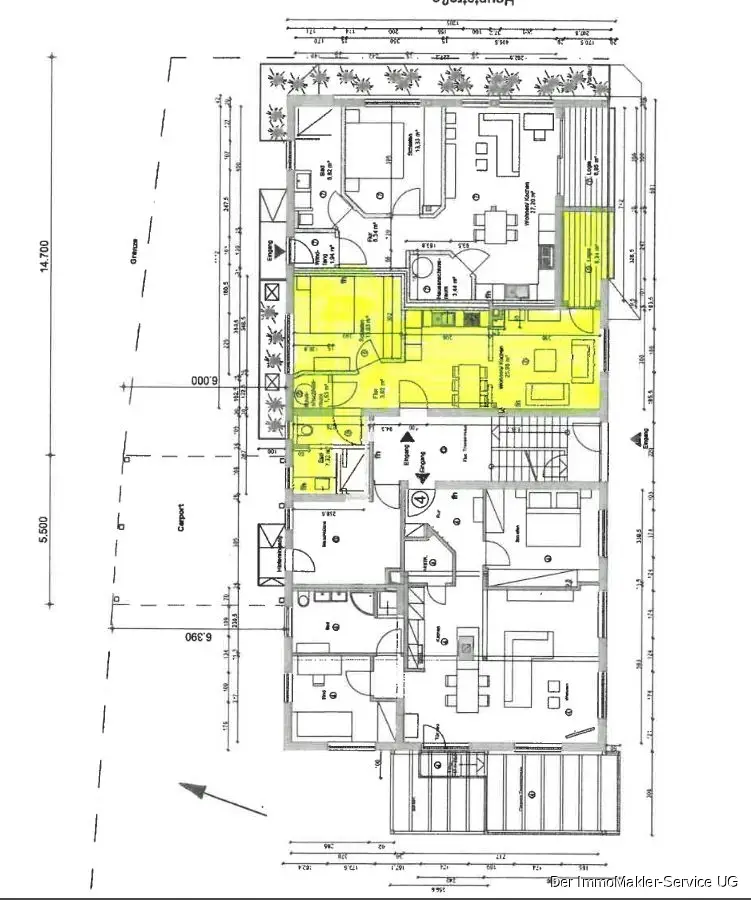
RX 2173-PU Grundriss Erdgeschoss farblich markiert vergrößert
Wärmepumpe
Doppelcarport
Bad Dusche
Bad Raum
Schlafzimmer
Küche
2173-PU Energieausweis Skala Neu 22.07.2025

Beschreibung

Top-Kapitalanlage: Vermietete 2-Zimmer-Neubauwohnung (Baujahr 2025) mit Balkon, großem Keller und modernster Technik

Investieren Sie in die Zukunft! Angeboten wird eine hochwertige, vermietete 2-Zimmer-Neubauwohnung in einem gepflegten Mehrparteienhaus. Ideal für Kapitalanleger, die Wert auf moderne Ausstattung, geringe Nebenkosten und nachhaltige Vermietbarkeit legen.

Eckdaten auf einen Blick:

Wohnfläche: ca. 53 m²

Eigentumsanteil: 142/1000

2 Zimmer, Küche, Bad (2ZKB)

Sonniger Balkon für zusätzlichen Wohnkomfort

Großzügiger Keller mit ca. 48 m² Nutzfläche

Erstbezug: frühstens ab 01.01.2026

1 Carportstellplatz

Ihre Vorteile als Anleger:
✅ Neubauqualität (Baujahr ETW 2025): Zeitgemäßer Grundriss, hochwertige Ausstattung und geringe Instandhaltungskosten
✅ Nachhaltige Technik: Moderne Wärmepumpe sorgt für niedrige Energiekosten und langfristigen Werterhalt, Warmwasser über Solarthermie, Energiebedarf weitaus niedriger als der Energiebedarf des Gesamtgebäudes (somit viel besser als im Energieausweis ausgewiesen!).
✅ Sichere Mieteinnahmen: Die Wohnung ist bereits solide vermietet – kein Eigenbedarf möglich, daher perfekt als reine Kapitalanlage
✅ Attraktive Lage: Ruhige Wohngegend mit guter Infrastruktur – Einkaufsmöglichkeiten, ÖPNV und Freizeitangebote direkt in der Nähe
✅ Historischer Charme & moderner Komfort: Das Haus selbst wurde 1903 erbaut, 1958 erweitert und durch den modernen Neubau perfekt ergänzt.


Profitieren Sie von einem neuwertigen Objekt mit langfristigem Wertsteigerungspotenzial und sicherer Mieteinnahme – eine ideale Kombination für kluge Investoren.

Sonstige Angaben

Um Ihre Anfrage schnellstmöglich zu bearbeiten, übermitteln Sie uns bitte mit der Anfrage Ihre vollständigen Kontaktdaten mit Anschrift, Telefonnummer und E-Mail Adresse. Wir sind aufgrund gesetzlicher Vorgaben und der Vereinbarung mit dem Eigentümer verpflichtet, die vollständigen Kontaktdaten aufzunehmen. Vielen Dank für Ihr Verständnis.

Fordern Sie jetzt das ausführliche Exposé mit weiteren Bildern an.

Ihr Ansprechpartner:
Ihr persönlicher Makler
Peter Ulisch Immobilienvermittlung

Büro: Berliner Straße 26, 32052 Herford
Telefon: +49 173 58 51 713
E-Mail: peter.ulisch(at)immomakler-service.de

Bitte beachten Sie auch die Erläuterungen zum Datenschutz

Lage und Verkehrsanbindung

Hüllhorst ist ein typisches Straßendorf, das heißt, im Wesentlichen liegen die Häuser beiderseits der Hauptstraße, die das Dorf von Norden nach Süden durchquert.
Das waldreiche Nachtigallental als „grüner Teil“ kann fußläufig vom Ortskern erreicht werden und bietet vielfältige Erholungs- und Wandermöglichkeiten.

Hüllhorst ist das „Dorf der kurzen Wege“. Der Ort bietet mit seinem Komplettangebot an Versorgungsleistungen auch über den täglichen Grundbedarf hinaus ein attraktives Nahversorgungskonzept für Jugend, Familien und Senioren. Hüllhorst hat eine gute öffentliche Nahverkehrsanbindung, so dass alle umliegenden Orte und die Mittelzentren Lübbecke, Löhne und Bad Oeynhausen direkt erreicht werden können.

Fakten

Objektnummer:
2173-PU
Objekttyp:
Wohnung
Balkon:
1
Wohnfläche:
53,31 m²
Nutzfläche:
48,79 m²
Grundstücksfläche:
1.188 m²
Zimmer:
2
Badezimmer:
1
Baujahr:
1958
Zustand:
Erstbezug
Verfügbarkeit:
Verfügbar

Preisdetails

Kaufpreis:
135.000,00 €
Provision:
3,57% inkl. gesetzl. MwSt.

Energieeffizienz

Energieausweisart:
Energiebedarfs­ausweis
Gültig bis:
22.07.2035
Endenergiebedarf:
115,1 kWh/(m²*a)
Energieeffizienzklasse:
D
Gebäudeart:
Wohnen
Baujahr laut Energieausweis:
1958
Wesentliche Energieträger:
Luftwp
Ausstellung:
ab dem 1.5.2014

Ansprechpartner

Peter Ulisch

Peter Ulisch

Immobilienmakler